Bed icon  2  Bath icon  1

2 bed Flat for sale
Collington Lane West, TN39
£260,000

Key Features

  • arrow icon Well Presented Two Bedroom First Floor Flat
  • arrow icon Private Entrance
  • arrow icon Dual Aspect Lounge/Dining Room
  • arrow icon Modern Kitchen/Breakfast Room
  • arrow icon Well Kept Communal Gardens
  • arrow icon Well Regarded Purpose Built Block Known As 'Tanglewood Coppice'
  • arrow icon Short Distance To Collington Train Station & 99 Bus Stop
  • arrow icon Garage
  • arrow icon Sought After Location
  • arrow icon Council Tax Band - B

Summary

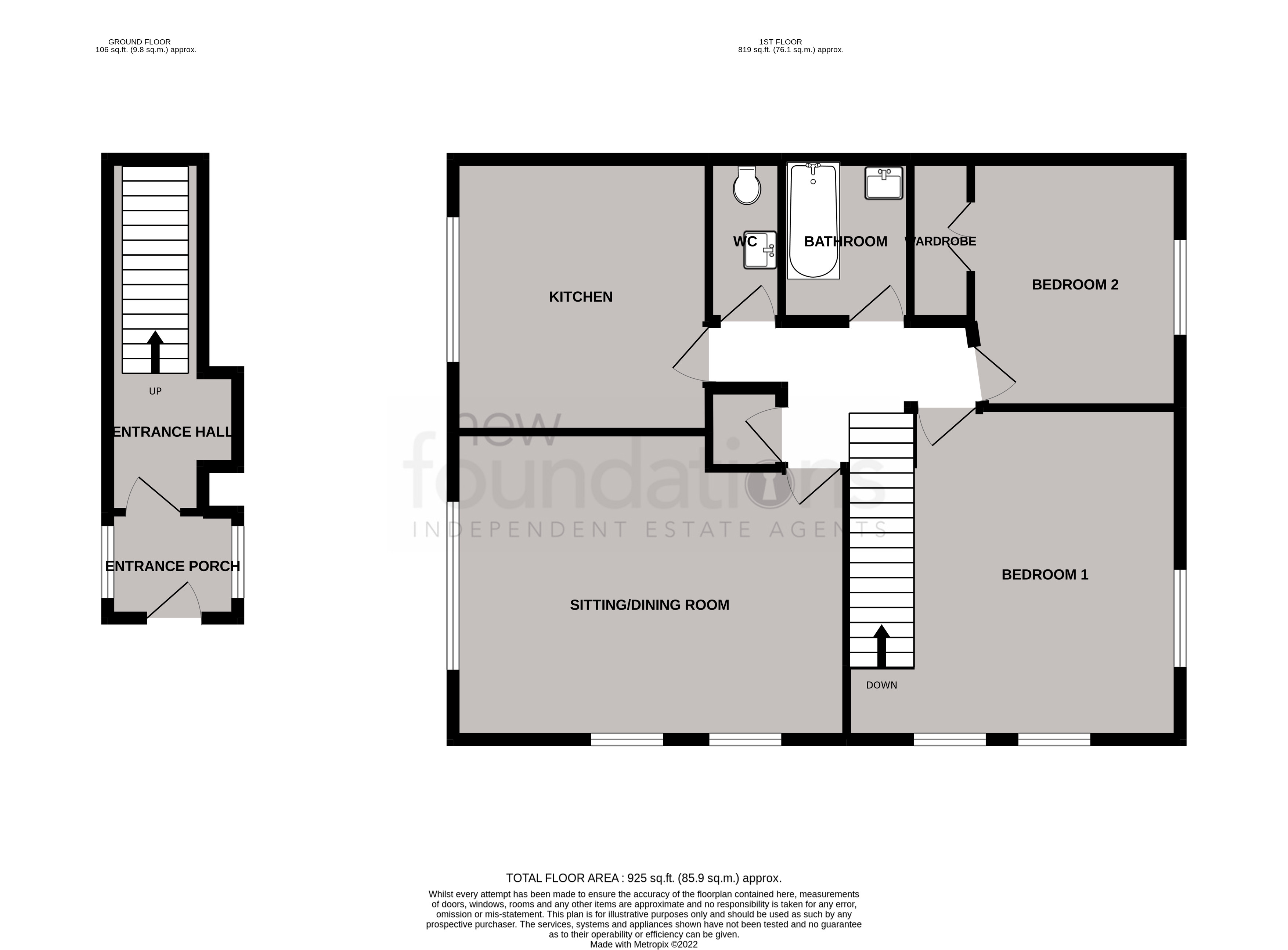
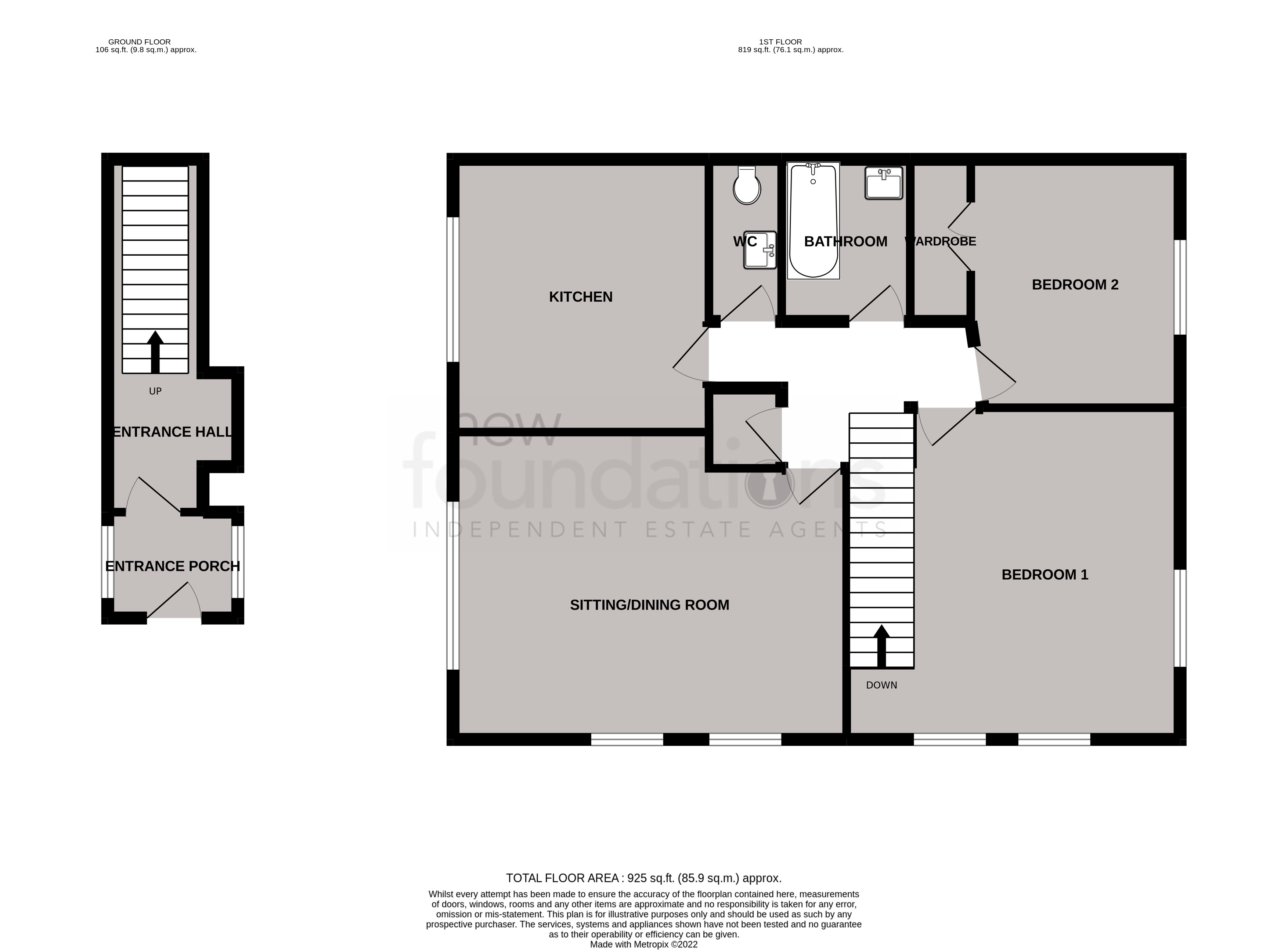
A well presented, bright and spacious two bedroom first floor purpose built flat situated in this sought after Cul-De-Sac just off Collington Lane West which is within a short distance of Collington train station and 99 bus stop. The property boasts; private entrance with stairs rising to the first floor, bright and spacious dual aspect lounge, modern kitchen/breakfast room, two double bedrooms, bathroom and separate WC. Outside there is a garage and very well kept communal gardens. EPC - C.

Entrance

Private double glazed front door with entry phone system leading to enclosed entrance porch with double glazed windows, tiled floor, high-level storage cupboard and cloaks hanging space, stairs rising to 1st floor landing.

First Floor Landing

With radiator, built in storage cupboard with shelving and cupboard over. Access by fitted ladder to large insulated loft being partly boarded with light and power.

Sitting Room

18' 0" x 14' 0" (5.49m x 4.27m) A south-westerly facing sitting room with a dual aspect having double glazed windows overlooking the communal gardens, two radiators, television point.

Kitchen

12' 4" x 11' 7" (3.76m x 3.53m) Having double glazed windows overlooking the communal garden. Having been refitted with single bowl sink unit with mixer tap and cupboard under, low-level hot and cold fan heater, plumbing for washing machine, range of working surfaces with cupboards and drawers below, electric cooker, fridge/freezer, dishwasher, part tiled walls, space for breakfast table, radiator and wall mounted gas boiler.

Bedroom 1

17' 6" reducing to 14'1'' x 14' 1" (5.33m x 4.29m) Having a dual aspect with double glazed windows overlooking the communal gardens, two freestanding double wardrobes, radiator.

Bedroom 2

11' 6" x 12' 1" (3.51m x 3.68m) Having double glazed window overlooking the communal gardens, radiator, two double built-in wardrobes with storage cupboards above.

Bathroom

Having fitted panelled bath with independent electric shower over with glass screen, extractor fan, pedestal wash basin, radiator, part tiled walls.

Separate W/C

With low-level WC, extractor fan, wall mounted wash basin, part tiled walls.

Outside

The property is surrounded by well-kept communal gardens and the property benefits from a garage located a short distance from the property.

NB

We have verbally been advised that the lease has 945 years remaining, the service charge is £170 per month to include building insurance, water and sewage rates and the property has a share of the freehold.

agent

For further details on this property please call us on:
01424 732233

Arrange Viewing
Floorplans For Collington Lane West, Bexhill-on-Sea, East Sussex
EPC For Collington Lane West, Bexhill-on-Sea, East Sussex
X

X

Viewing Request


* Mandatory